Top.Mail.Ru

Большая Косинская ул., д. 12

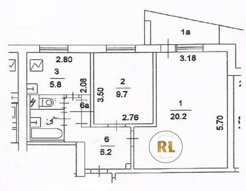
База каталог, Кол-во подъездов: 6, Отсутствует, I-515, Москва, Косино-Ухтомский, Площадь парковки: 307,6, Пассажирский лифт: 6, От метро: 1090, Восточный, да, Наименьшее кол-во этажей: 9, Наибольшее кол-во этажей: 9, Косино, Кол-во помещений: 215, Кол-во нежилых помещений: 0, Год ввода в эксплуатацию: 1972, 2-комн, Кол-во жилых помещений: 215, Не присвоен, дом 12, нет, да, да, да, да, да, Отсутствует, Грузовых лифтов: 0, Год постройки: 1972, Большая Косинская улица, 37.854530, 55.709931
7 921 000 Р
10 дн.
D55S709931L37S854530D
+

На карте


Условия сделки

Источник


Старт продаж