Top.Mail.Ru

улица Федора Полетаева, д. 17, к. 2

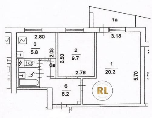
База каталог, Кол-во подъездов: 6, Имеется, I-515, Москва, Рязанский, Площадь парковки: 0, Пассажирский лифт: 6, От метро: 980, Юго-Восточный, нет, Наименьшее кол-во этажей: 9, Наибольшее кол-во этажей: 9, Рязанский проспект, Кол-во помещений: 218, Кол-во нежилых помещений: 2, Год ввода в эксплуатацию: 1972, 2-комн, Кол-во жилых помещений: 216, Не присвоен, дом 17, корпус 2, нет, да, да, да, да, да, Отсутствует, Грузовых лифтов: 0, Год постройки: 1972, улица Федора Полетаева, 37.785809, 55.710235
11 500 000 Р
10 дн.
D55S710235L37S785809D
+

На карте


Условия сделки

Источник


Старт продаж