Top.Mail.Ru

Сормовская ул., д. 3, к. 2

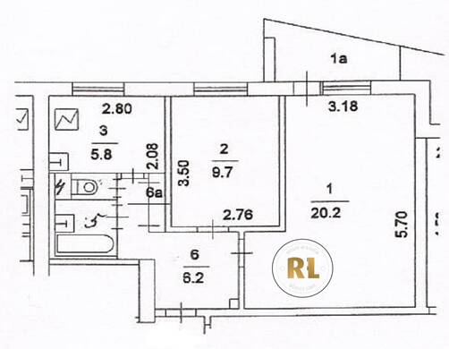
База каталог, Кол-во подъездов: 4, I-515, Москва, Выхино-Жулебино, Пассажирский лифт: 4, От метро: 620, Юго-Восточный, да, Наименьшее кол-во этажей: 9, Наибольшее кол-во этажей: 9, Юго-Восточная, Кол-во помещений: 148, Кол-во нежилых помещений: 4, Год ввода в эксплуатацию: 1975, 2-комн, Кол-во жилых помещений: 144, С, дом 3, корпус 2, нет, да, да, да, да, да, Грузовых лифтов: 0, Год постройки: 1975, Сормовская улица, 37.815193, 55.710611
10 700 000 Р
10 дн.
D55S710611L37S815193D
+

На карте


Условия сделки

Источник


Старт продаж