Top.Mail.Ru

Мосфильмовская ул., д. 43/40

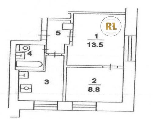
База каталог, Кол-во подъездов: 1, II-29, Москва, Раменки, Площадь парковки: 0, Пассажирский лифт: 2, От метро: 680, Западный, нет, Наименьшее кол-во этажей: 0, Наибольшее кол-во этажей: 14, Ломоносовский проспект, Кол-во помещений: 141, Кол-во нежилых помещений: 29, Год ввода в эксплуатацию: 1967, 2-комн, Кол-во жилых помещений: 112, Не присвоен, дом 43/40, нет, да, да, да, да, да, Грузовых лифтов: 0, Год постройки: 1967, Мосфильмовская улица, 37.507789, 55.710682
Свяжитесь со мной на счет цены
10 дн.
D55S710682L37S507789D

На карте


Условия сделки

Источник


Старт продаж

Возможно заинтересует