Top.Mail.Ru

Рязанский проспект, д. 70, к. 3

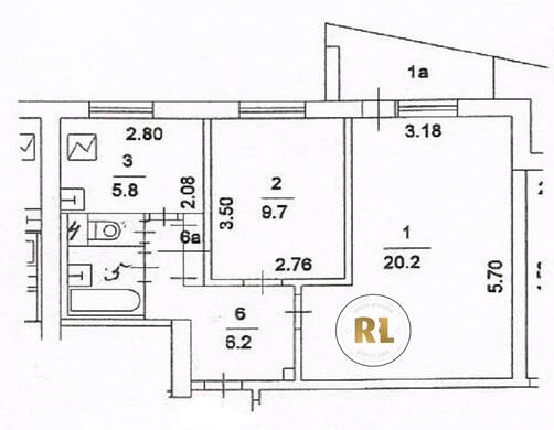
База каталог, Кол-во подъездов: 4, Отсутствует, I-515, Москва, Выхино-Жулебино, Пассажирский лифт: 4, От метро: 830, Юго-Восточный, да, Наименьшее кол-во этажей: 1, Наибольшее кол-во этажей: 9, Выхино, Кол-во помещений: 145, Кол-во нежилых помещений: 1, Год ввода в эксплуатацию: 1975, 2-комн, Кол-во жилых помещений: 144, E, дом 70, корпус 3, нет, да, да, да, да, да, Отсутствует, Грузовых лифтов: 0, Год постройки: 1975, Рязанский проспект, 37.810108, 55.712350
Свяжитесь со мной на счет цены
10 дн.
D55S712350L37S810108D

На карте


Условия сделки

Источник


Старт продаж

Возможно заинтересует