Top.Mail.Ru

Зеленодольская ул., д. 9, к. 2

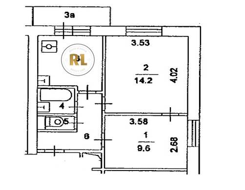
База каталог, Кол-во подъездов: 1, Отсутствует, II-18-31/12А, Москва, Рязанский, Площадь парковки: 0, Пассажирский лифт: 2, От метро: 790, Юго-Восточный, нет, Наименьшее кол-во этажей: 12, Наибольшее кол-во этажей: 12, Окская, Кол-во помещений: 84, Кол-во нежилых помещений: 4, Год ввода в эксплуатацию: 1970, 2-комн, Кол-во жилых помещений: 80, Не присвоен, дом 9, корпус 2, нет, да, да, да, да, да, Имеется, Грузовых лифтов: 0, Год постройки: 1970, Зеленодольская улица, 37.781838, 55.713101
Свяжитесь со мной на счет цены
10 дн.
D55S713101L37S781838D

На карте


Условия сделки

Источник


Старт продаж

Возможно заинтересует