Top.Mail.Ru

улица Татищева, д. 5

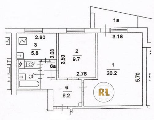
База каталог, Кол-во подъездов: 2, Имеется, I-515, Москва, Даниловский, Площадь парковки: 0, Пассажирский лифт: 2, От метро: 930, Южный, нет, Наименьшее кол-во этажей: 9, Наибольшее кол-во этажей: 9, Шаболовская, Кол-во помещений: 72, Кол-во нежилых помещений: 0, Год ввода в эксплуатацию: 1975, 2-комн, Кол-во жилых помещений: 72, D, дом 5, нет, да, да, да, да, да, Имеется, Грузовых лифтов: 0, Год постройки: 1975, улица Татищева, 37.615973, 55.714947
Свяжитесь со мной на счет цены
10 дн.
D55S714947L37S615973D

На карте


Условия сделки

Источник


Старт продаж

Возможно заинтересует