Top.Mail.Ru

1-я Новокузьминская ул., д. 6

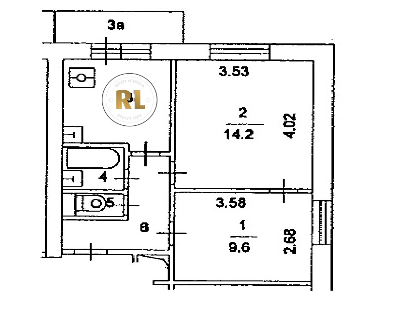
База каталог, Кол-во подъездов: 1, Отсутствует, II-18-31/12А, Москва, Рязанский, Площадь парковки: 0, Пассажирский лифт: 1, От метро: 350, Юго-Восточный, нет, Наименьшее кол-во этажей: 1, Наибольшее кол-во этажей: 12, Окская, Кол-во помещений: 86, Кол-во нежилых помещений: 2, Год ввода в эксплуатацию: 1965, 2-комн, Кол-во жилых помещений: 84, Не присвоен, дом 6, да, да, да, да, да, да, Отсутствует, Грузовых лифтов: 0, Год постройки: 1965, 1-я Новокузьминская улица, 37.781120, 55.717112
Свяжитесь со мной на счет цены
10 дн.
D55S717112L37S781120D

На карте


Условия сделки

Источник


Старт продаж

Возможно заинтересует