Top.Mail.Ru

Инициативная ул., д. 6, к. 2

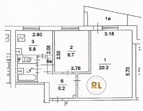
База каталог, Кол-во подъездов: 2, I-515, Москва, Фили-Давыдково, Площадь парковки: 0, Пассажирский лифт: 2, От метро: 620, Западный, нет, Наименьшее кол-во этажей: 1, Наибольшее кол-во этажей: 9, Давыдково, Кол-во помещений: 178, Кол-во нежилых помещений: 0, Год ввода в эксплуатацию: 1972, 2-комн, Кол-во жилых помещений: 178, А, дом 6, корпус 2, нет, да, да, да, да, да, Имеется, Грузовых лифтов: 0, Год постройки: 1972, Инициативная улица, 37.458202, 55.717345
Свяжитесь со мной на счет цены
10 дн.
D55S717345L37S458202D

На карте


Условия сделки

Источник


Старт продаж

Возможно заинтересует