Top.Mail.Ru

улица Артамонова, д. 11, к. 2

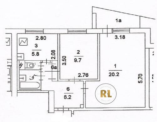
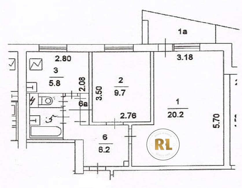
База каталог, Кол-во подъездов: 3, I-515, Москва, Фили-Давыдково, Площадь парковки: 0, Пассажирский лифт: 6, От метро: 640, Западный, нет, Наименьшее кол-во этажей: 1, Наибольшее кол-во этажей: 9, Давыдково, Кол-во помещений: 215, Кол-во нежилых помещений: 0, Год ввода в эксплуатацию: 1973, 2-комн, Кол-во жилых помещений: 215, А, дом 11, корпус 2, нет, да, да, да, да, да, Имеется, Грузовых лифтов: 0, Год постройки: 1973, улица Артамонова, 37.456639, 55.717781
Свяжитесь со мной на счет цены
10 дн.
D55S717781L37S456639D

На карте


Условия сделки

Источник


Старт продаж

Возможно заинтересует