Top.Mail.Ru

Волжский бульвар, д. 6, к. 1

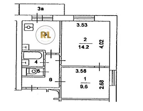
База каталог, Кол-во подъездов: 1, Имеется, II-18-01/12, Москва, Текстильщики, Площадь парковки: 0, Пассажирский лифт: 2, От метро: 1460, Юго-Восточный, нет, Наименьшее кол-во этажей: 12, Наибольшее кол-во этажей: 12, Текстильщики, Кол-во помещений: 84, Кол-во нежилых помещений: 0, Год ввода в эксплуатацию: 1969, 2-комн, Кол-во жилых помещений: 84, Не присвоен, дом 6, корпус 1, нет, да, да, да, да, нет, Имеется, Грузовых лифтов: 0, Год постройки: 1969, Волжский бульвар, 37.740103, 55.718304
Свяжитесь со мной на счет цены
10 дн.
D55S718304L37S740103D

На карте


Условия сделки

Источник


Старт продаж

Возможно заинтересует