Top.Mail.Ru

Грайвороновская ул., д. 14, к. 2

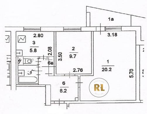
База каталог, Кол-во подъездов: 4, Имеется, I-515, Москва, Текстильщики, Площадь парковки: 0, Пассажирский лифт: 4, От метро: 1180, Юго-Восточный, нет, Наименьшее кол-во этажей: 9, Наибольшее кол-во этажей: 9, Текстильщики, Кол-во помещений: 144, Кол-во нежилых помещений: 0, Год ввода в эксплуатацию: 1969, 2-комн, Кол-во жилых помещений: 144, Не присвоен, дом 14, корпус 2, нет, да, да, да, да, нет, Имеется, Грузовых лифтов: 0, Год постройки: 1969, Грайвороновская улица, 37.733042, 55.718314
Свяжитесь со мной на счет цены
10 дн.
D55S718314L37S733042D

На карте


Условия сделки

Источник


Старт продаж

Возможно заинтересует