Top.Mail.Ru

улица Артамонова, д. 7

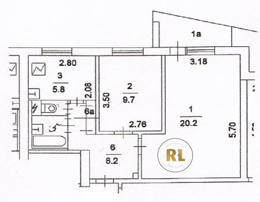
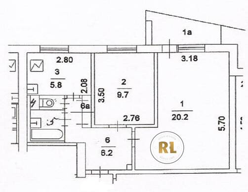
База каталог, Кол-во подъездов: 2, 5-515, Москва, Фили-Давыдково, Пассажирский лифт: 2, От метро: 880, Западный, да, Наименьшее кол-во этажей: 9, Наибольшее кол-во этажей: 9, Давыдково, Кол-во помещений: 65, Кол-во нежилых помещений: 1, Год ввода в эксплуатацию: 1980, 2-комн, Кол-во жилых помещений: 64, дом 7, нет, да, да, да, да, да, Грузовых лифтов: 0, Год постройки: 1980, улица Артамонова, 37.459352, 55.719095
Свяжитесь со мной на счет цены
10 дн.
D55S719095L37S459352D

На карте


Условия сделки

Источник


Старт продаж

Возможно заинтересует