Top.Mail.Ru

Грайвороновская ул., д. 16, к. 2

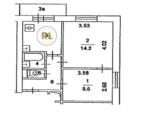
База каталог, Кол-во подъездов: 1, Имеется, II-18-01/12, Москва, Текстильщики, Площадь парковки: 0, Пассажирский лифт: 1, От метро: 1230, Юго-Восточный, нет, Наименьшее кол-во этажей: 12, Наибольшее кол-во этажей: 12, Текстильщики, Кол-во помещений: 84, Кол-во нежилых помещений: 0, Год ввода в эксплуатацию: 1969, 2-комн, Кол-во жилых помещений: 84, Не присвоен, дом 16, корпус 2, нет, да, да, да, да, нет, Имеется, Грузовых лифтов: 1, Год постройки: 1969, Грайвороновская улица, 37.734012, 55.719120
Свяжитесь со мной на счет цены
10 дн.
D55S719120L37S734012D

На карте


Условия сделки

Источник


Старт продаж

Возможно заинтересует