Top.Mail.Ru

Волжский бульвар, д. 2/22

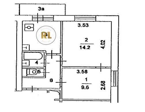
База каталог, Кол-во подъездов: 2, Имеется, II-18-31/12А, Москва, Текстильщики, Площадь парковки: 0, Пассажирский лифт: 2, От метро: 1510, Юго-Восточный, нет, Наименьшее кол-во этажей: 12, Наибольшее кол-во этажей: 12, Текстильщики, Кол-во помещений: 4, Кол-во нежилых помещений: 2, Год ввода в эксплуатацию: 1969, 2-комн, Кол-во жилых помещений: 2, Не присвоен, дом 2/22, нет, да, да, да, да, нет, Имеется, Грузовых лифтов: 2, Год постройки: 1969, Волжский бульвар, 37.739447, 55.719333
Свяжитесь со мной на счет цены
10 дн.
D55S719333L37S739447D

На карте


Условия сделки

Источник


Старт продаж

Возможно заинтересует