Top.Mail.Ru

улица Горбунова, д. 11, к. 4

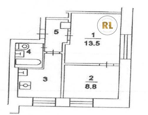
База каталог, Кол-во подъездов: 3, II-29, Москва, Можайский, Пассажирский лифт: 3, От метро: 3400, Западный, да, Наименьшее кол-во этажей: 0, Наибольшее кол-во этажей: 9, Молодёжная, Кол-во помещений: 108, Кол-во нежилых помещений: 0, Год ввода в эксплуатацию: 1974, 2-комн, Кол-во жилых помещений: 108, дом 11, корпус 4, нет, нет, нет, нет, нет, нет, Имеется, Грузовых лифтов: 0, Год постройки: 1974, улица Горбунова, 37.386130, 55.721006
Свяжитесь со мной на счет цены
10 дн.
D55S721006L37S386130D

На карте


Условия сделки

Источник


Старт продаж

Возможно заинтересует