Top.Mail.Ru

улица Багрицкого, д. 10, к. 2

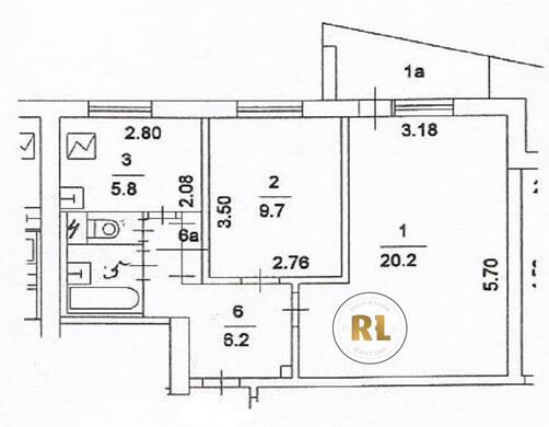
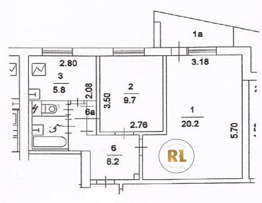
База каталог, Кол-во подъездов: 4, Имеется, I-515, Москва, Можайский, Площадь парковки: 0, Пассажирский лифт: 4, От метро: 1270, Западный, нет, Наименьшее кол-во этажей: 1, Наибольшее кол-во этажей: 9, Кунцевская, Кол-во помещений: 144, Кол-во нежилых помещений: 0, Год ввода в эксплуатацию: 1973, 2-комн, Кол-во жилых помещений: 144, Не присвоен, дом 10, корпус 2, нет, да, да, да, да, нет, Имеется, Грузовых лифтов: 0, Год постройки: 1973, улица Багрицкого, 37.434711, 55.723014
Свяжитесь со мной на счет цены
10 дн.
D55S723014L37S434711D

На карте


Условия сделки

Источник


Старт продаж

Возможно заинтересует