Top.Mail.Ru

улица Ращупкина, д. 9

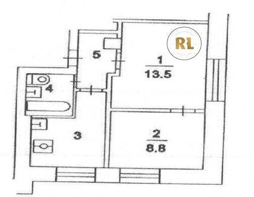
База каталог, Кол-во подъездов: 8, II-29, Москва, Можайский, Пассажирский лифт: 8, От метро: 930, Западный, да, Наименьшее кол-во этажей: 0, Наибольшее кол-во этажей: 9, Кунцевская, Кол-во помещений: 287, Кол-во нежилых помещений: 0, Год ввода в эксплуатацию: 1969, 2-комн, Кол-во жилых помещений: 287, дом 9, нет, да, да, да, да, да, Грузовых лифтов: 0, Год постройки: 1969, улица Ращупкина, 37.438233, 55.724297
Свяжитесь со мной на счет цены
10 дн.
D55S724297L37S438233D

На карте


Условия сделки

Источник


Старт продаж

Возможно заинтересует