Top.Mail.Ru

улица Ращупкина, д. 10

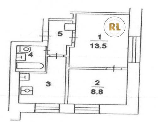
База каталог, Кол-во подъездов: 3, II-29, Москва, Можайский, Пассажирский лифт: 3, От метро: 590, Западный, да, Наименьшее кол-во этажей: 0, Наибольшее кол-во этажей: 9, Кунцевская, Кол-во помещений: 108, Кол-во нежилых помещений: 0, Год ввода в эксплуатацию: 1970, 2-комн, Кол-во жилых помещений: 108, дом 10, да, да, да, да, да, да, Имеется, Грузовых лифтов: 0, Год постройки: 1970, улица Ращупкина, 37.442077, 55.725605
Свяжитесь со мной на счет цены
10 дн.
D55S725605L37S442077D

На карте


Условия сделки

Источник


Старт продаж

Возможно заинтересует