Top.Mail.Ru

2-й Мосфильмовский переулок, д. 14

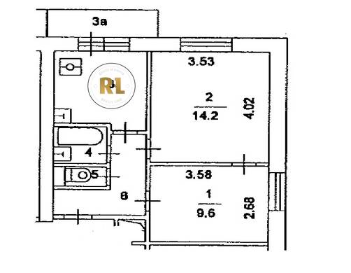
База каталог, Кол-во подъездов: 1, Отсутствует, II-18-31/12А, Москва, Раменки, Площадь парковки: 0, Пассажирский лифт: 2, От метро: 2300, Западный, нет, Наименьшее кол-во этажей: 12, Наибольшее кол-во этажей: 12, Минская, Кол-во помещений: 84, Кол-во нежилых помещений: 0, Год ввода в эксплуатацию: 1968, 2-комн, Кол-во жилых помещений: 84, С, дом 14, нет, да, да, нет, нет, нет, Имеется, Грузовых лифтов: 0, Год постройки: 1968, 2-й Мосфильмовский переулок, 37.523420, 55.726294
Свяжитесь со мной на счет цены
10 дн.
D55S726294L37S523420D

На карте


Условия сделки

Источник


Старт продаж

Возможно заинтересует