Top.Mail.Ru

2-й Мосфильмовский переулок, д. 18

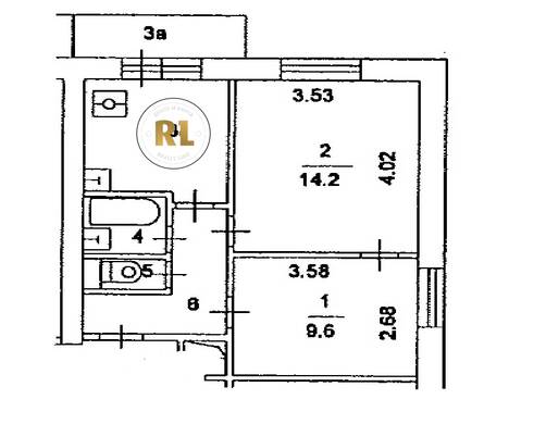
База каталог, Кол-во подъездов: 1, Отсутствует, II-18-31/12А, Москва, Раменки, Площадь парковки: 0, Пассажирский лифт: 2, От метро: 2150, Западный, нет, Наименьшее кол-во этажей: 12, Наибольшее кол-во этажей: 12, Минская, Кол-во помещений: 84, Кол-во нежилых помещений: 0, Год ввода в эксплуатацию: 1967, 2-комн, Кол-во жилых помещений: 84, С, дом 18, нет, да, да, нет, нет, нет, Имеется, Грузовых лифтов: 0, Год постройки: 1967, 2-й Мосфильмовский переулок, 37.522054, 55.727283
Свяжитесь со мной на счет цены
10 дн.
D55S727283L37S522054D

На карте


Условия сделки

Источник


Старт продаж

Возможно заинтересует