Top.Mail.Ru

3-й Сетуньский проезд, д. 6

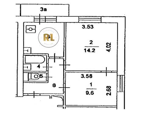
База каталог, Кол-во подъездов: 1, Отсутствует, II-18-31/12А, Москва, Раменки, Площадь парковки: 0, Пассажирский лифт: 2, От метро: 4700, Западный, нет, Наименьшее кол-во этажей: 12, Наибольшее кол-во этажей: 12, Студенческая, Кол-во помещений: 84, Кол-во нежилых помещений: 0, Год ввода в эксплуатацию: 1967, 2-комн, Кол-во жилых помещений: 84, С, дом 6, нет, нет, нет, нет, нет, нет, Имеется, Грузовых лифтов: 0, Год постройки: 1967, 3-й Сетуньский проезд, 37.536895, 55.732869
Свяжитесь со мной на счет цены
10 дн.
D55S732869L37S536895D

На карте


Условия сделки

Источник


Старт продаж

Возможно заинтересует