Top.Mail.Ru

Средняя Калитниковская ул., д. 51, к. 2

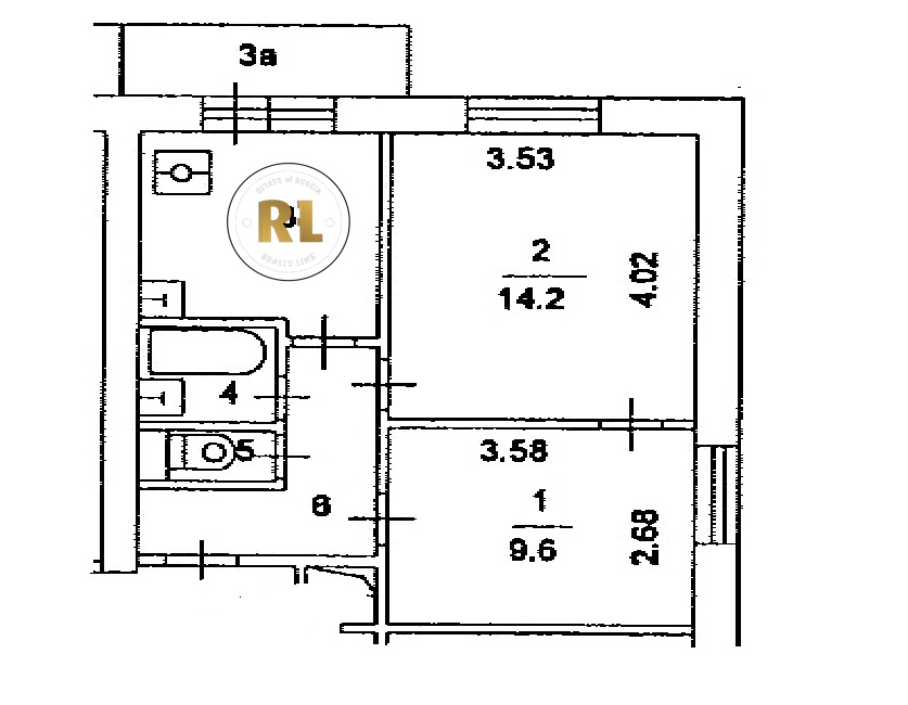
База каталог, Кол-во подъездов: 1, Имеется, II-18/22, Москва, Нижегородский, Площадь парковки: 0, Пассажирский лифт: 2, От метро: 1700, Юго-Восточный, нет, Наименьшее кол-во этажей: 0, Наибольшее кол-во этажей: 12, Волгоградский проспект, Кол-во помещений: 2, Кол-во нежилых помещений: 2, Год ввода в эксплуатацию: 1968, 2-комн, Кол-во жилых помещений: 0, Не присвоен, дом 51, корпус 2, нет, да, да, да, нет, нет, Имеется, Грузовых лифтов: 0, Год постройки: 1968, Средняя Калитниковская улица, 37.700352, 55.733832
Свяжитесь со мной на счет цены
10 дн.
D55S733832L37S700352D

На карте


Условия сделки

Источник


Старт продаж

Возможно заинтересует