Top.Mail.Ru

Коренная ул., д. 10

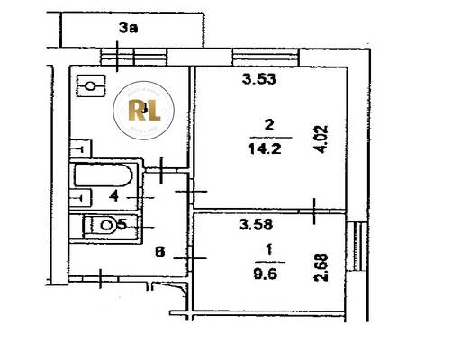
База каталог, Кол-во подъездов: 1, II-18-01/12, Москва, Новогиреево, Площадь парковки: 665, Пассажирский лифт: 2, От метро: 1400, Восточный, да, Наименьшее кол-во этажей: 12, Наибольшее кол-во этажей: 12, Перово, Кол-во помещений: 84, Кол-во нежилых помещений: 0, Год ввода в эксплуатацию: 1969, 2-комн, Кол-во жилых помещений: 84, дом 10, нет, да, да, да, да, нет, Имеется, Грузовых лифтов: 0, Год постройки: 1969, Коренная улица, 37.778290, 55.741125
Свяжитесь со мной на счет цены
10 дн.
D55S741125L37S778290D

На карте


Условия сделки

Источник


Старт продаж

Возможно заинтересует