Top.Mail.Ru

улица Плющева, д. 18, к. 2

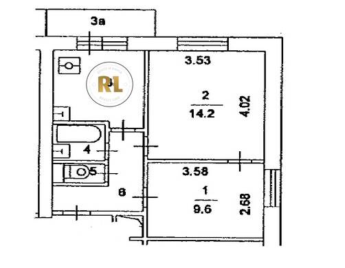
База каталог, Кол-во подъездов: 1, II-18-21/12, Москва, Перово, Пассажирский лифт: 2, От метро: 2090, Восточный, да, Наименьшее кол-во этажей: 12, Наибольшее кол-во этажей: 12, Шоссе Энтузиастов, Кол-во помещений: 83, Кол-во нежилых помещений: 3, Год ввода в эксплуатацию: 1969, 2-комн, Кол-во жилых помещений: 80, дом 18, корпус 2, нет, да, да, да, нет, нет, Грузовых лифтов: 0, Год постройки: 1969, улица Плющева, 37.760548, 55.741368
Свяжитесь со мной на счет цены
10 дн.
D55S741368L37S760548D

На карте


Условия сделки

Источник


Старт продаж

Возможно заинтересует