Top.Mail.Ru

улица Лазо, д. 14, к. 2

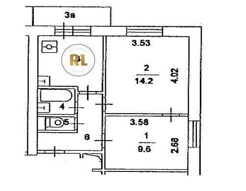
База каталог, Кол-во подъездов: 1, II-18-01/12, Москва, Перово, Пассажирский лифт: 2, От метро: 1490, Восточный, да, Наименьшее кол-во этажей: 12, Наибольшее кол-во этажей: 12, Перово, Кол-во помещений: 82, Кол-во нежилых помещений: 2, Год ввода в эксплуатацию: 1968, 2-комн, Кол-во жилых помещений: 80, дом 14, корпус 2, нет, да, да, да, да, нет, Грузовых лифтов: 0, Год постройки: 1968, улица Лазо, 37.771705, 55.742149
Свяжитесь со мной на счет цены
10 дн.
D55S742149L37S771705D

На карте


Условия сделки

Источник


Старт продаж

Возможно заинтересует