Top.Mail.Ru

Кусковская ул., д. 31, к. 2

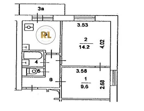
База каталог, Кол-во подъездов: 1, II-18, Москва, Новогиреево, Площадь парковки: 232, Пассажирский лифт: 2, От метро: 1100, Восточный, да, Наименьшее кол-во этажей: 12, Наибольшее кол-во этажей: 12, Перово, Кол-во помещений: 84, Кол-во нежилых помещений: 0, Год ввода в эксплуатацию: 1966, 2-комн, Кол-во жилых помещений: 84, Не присвоен, дом 31, корпус 2, нет, да, да, да, да, нет, Грузовых лифтов: 0, Год постройки: 1966, Кусковская улица, 37.785027, 55.742813
Свяжитесь со мной на счет цены
10 дн.
D55S742813L37S785027D

На карте


Условия сделки

Источник


Старт продаж

Возможно заинтересует