Top.Mail.Ru

улица Плеханова, д. 25, к. 5

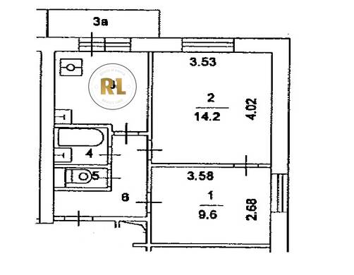
База каталог, Кол-во подъездов: 1, II-18-01/12, Москва, Перово, Пассажирский лифт: 2, От метро: 1620, Восточный, да, Наименьшее кол-во этажей: 12, Наибольшее кол-во этажей: 12, Перово, Кол-во помещений: 82, Кол-во нежилых помещений: 1, Год ввода в эксплуатацию: 1967, 2-комн, Кол-во жилых помещений: 81, дом 25, корпус 5, нет, да, да, да, нет, нет, Грузовых лифтов: 0, Год постройки: 1967, улица Плеханова, 37.767735, 55.743233
Свяжитесь со мной на счет цены
10 дн.
D55S743233L37S767735D

На карте


Условия сделки

Источник


Старт продаж

Возможно заинтересует