Top.Mail.Ru

улица Аносова, д. 3, к. 2

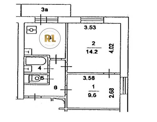
База каталог, Кол-во подъездов: 1, II-18-31/12А, Москва, Перово, Пассажирский лифт: 2, От метро: 1850, Восточный, да, Наименьшее кол-во этажей: 12, Наибольшее кол-во этажей: 12, Шоссе Энтузиастов, Кол-во помещений: 81, Кол-во нежилых помещений: 1, Год ввода в эксплуатацию: 1969, 2-комн, Кол-во жилых помещений: 80, дом 3, корпус 2, нет, да, да, да, нет, нет, Грузовых лифтов: 0, Год постройки: 1969, улица Аносова, 37.755006, 55.743350
Свяжитесь со мной на счет цены
10 дн.
D55S743350L37S755006D

На карте


Условия сделки

Источник


Старт продаж

Возможно заинтересует