Top.Mail.Ru

улица Плеханова, д. 25, к. 3

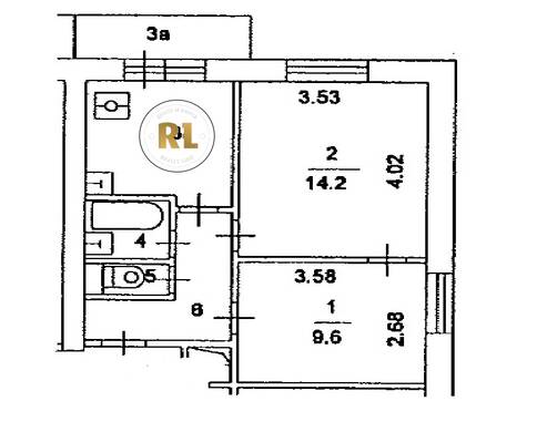
База каталог, Кол-во подъездов: 1, II-18-01/12, Москва, Перово, Пассажирский лифт: 2, От метро: 1560, Восточный, да, Наименьшее кол-во этажей: 12, Наибольшее кол-во этажей: 12, Перово, Кол-во помещений: 85, Кол-во нежилых помещений: 1, Год ввода в эксплуатацию: 1968, 2-комн, Кол-во жилых помещений: 84, дом 25, корпус 3, нет, да, да, да, да, нет, Грузовых лифтов: 0, Год постройки: 1968, улица Плеханова, 37.767384, 55.743755
Свяжитесь со мной на счет цены
10 дн.
D55S743755L37S767384D

На карте


Условия сделки

Источник


Старт продаж

Возможно заинтересует