Top.Mail.Ru

Перовская ул., д. 50, к. 4

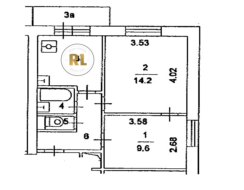
База каталог, Кол-во подъездов: 1, II-18-01/12, Москва, Новогиреево, Площадь парковки: 360, Пассажирский лифт: 2, От метро: 890, Восточный, да, Наименьшее кол-во этажей: 12, Наибольшее кол-во этажей: 12, Перово, Кол-во помещений: 96, Кол-во нежилых помещений: 0, Год ввода в эксплуатацию: 1970, 2-комн, Кол-во жилых помещений: 96, Не присвоен, дом 50, корпус 4, нет, да, да, да, да, да, Грузовых лифтов: 0, Год постройки: 1970, Перовская улица, 37.785108, 55.744617
Свяжитесь со мной на счет цены
10 дн.
D55S744617L37S785108D

На карте


Условия сделки

Источник


Старт продаж

Возможно заинтересует