Top.Mail.Ru

Перовская ул., д. 50, к. 5

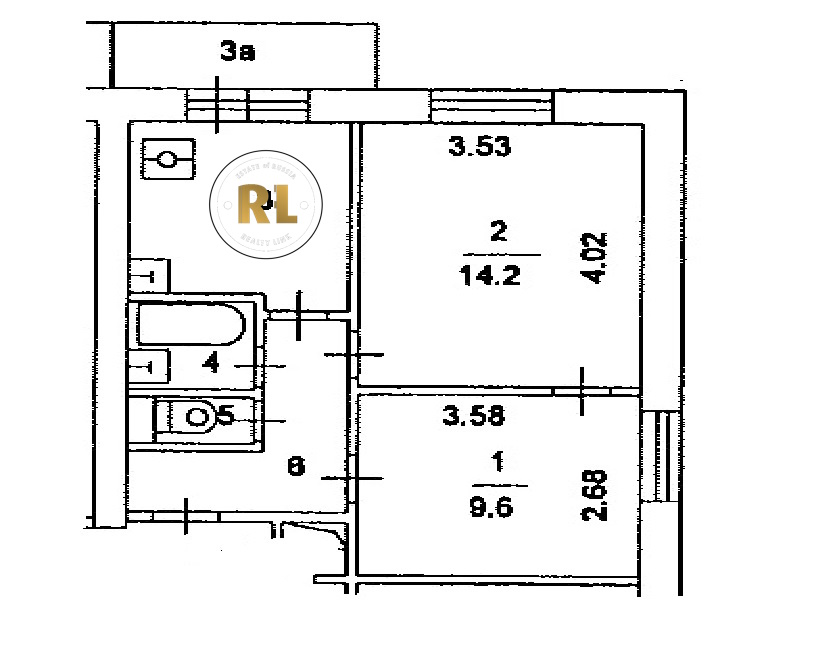
База каталог, Кол-во подъездов: 1, II-18-01/12, Москва, Новогиреево, Площадь парковки: 744, Пассажирский лифт: 2, От метро: 920, Восточный, да, Наименьшее кол-во этажей: 12, Наибольшее кол-во этажей: 12, Перово, Кол-во помещений: 96, Кол-во нежилых помещений: 0, Год ввода в эксплуатацию: 1971, 2-комн, Кол-во жилых помещений: 96, Не присвоен, дом 50, корпус 5, нет, да, да, да, да, да, Грузовых лифтов: 0, Год постройки: 1971, Перовская улица, 37.784012, 55.744708
Свяжитесь со мной на счет цены
10 дн.
D55S744708L37S784012D

На карте


Условия сделки

Источник


Старт продаж

Возможно заинтересует