Top.Mail.Ru

Полимерная ул., д. 3

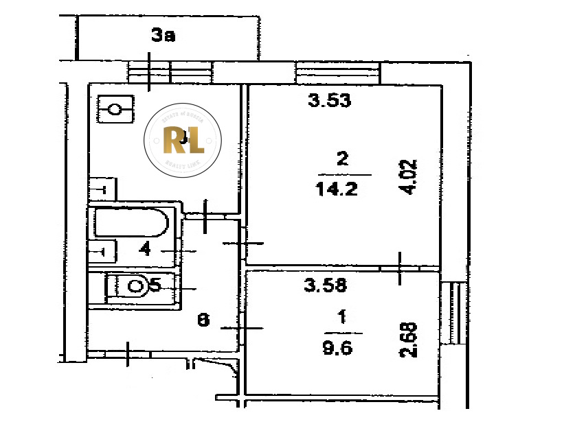
База каталог, Кол-во подъездов: 1, II-18-01/12, Москва, Новогиреево, Площадь парковки: 120, Пассажирский лифт: 2, От метро: 920, Восточный, да, Наименьшее кол-во этажей: 12, Наибольшее кол-во этажей: 12, Перово, Кол-во помещений: 84, Кол-во нежилых помещений: 0, Год ввода в эксплуатацию: 1972, 2-комн, Кол-во жилых помещений: 84, дом 3, нет, да, да, да, да, да, Имеется, Грузовых лифтов: 0, Год постройки: 1972, Полимерная улица, 37.794055, 55.746041
Свяжитесь со мной на счет цены
10 дн.
D55S746041L37S794055D

На карте


Условия сделки

Источник


Старт продаж

Возможно заинтересует