Top.Mail.Ru

Перовская ул., д. 4, к. 2

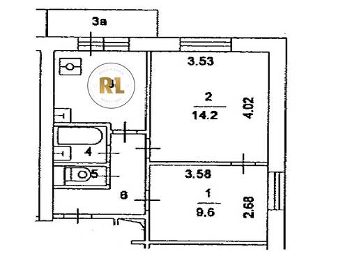
База каталог, Кол-во подъездов: 1, II-18, Москва, Перово, Пассажирский лифт: 2, От метро: 1360, Восточный, да, Наименьшее кол-во этажей: 12, Наибольшее кол-во этажей: 12, Шоссе Энтузиастов, Кол-во помещений: 84, Кол-во нежилых помещений: 0, Год ввода в эксплуатацию: 1968, 2-комн, Кол-во жилых помещений: 84, дом 4, корпус 2, нет, да, да, да, да, нет, Грузовых лифтов: 0, Год постройки: 1968, Перовская улица, 37.755401, 55.746811
Свяжитесь со мной на счет цены
10 дн.
D55S746811L37S755401D

На карте


Условия сделки

Источник


Старт продаж

Возможно заинтересует