Top.Mail.Ru

Полимерная ул., д. 7

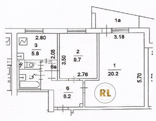
База каталог, Кол-во помещений: 215, Имеется, I-515, Москва, Новогиреево, Площадь парковки: 792, Пассажирский лифт: 6, От метро: 1070, Восточный, да, Наименьшее кол-во этажей: 9, Наибольшее кол-во этажей: 9, Перово, Кол-во подъездов: 6, Год ввода в эксплуатацию: 1973, Кол-во нежилых помещений: 1, 2-комн, Кол-во жилых помещений: 214, дом 7, нет, да, да, да, да, да, Имеется, Грузовых лифтов: 0, Год постройки: 1973, Полимерная улица, 37.798682, 55.746821
Свяжитесь со мной на счет цены
10 дн.
D55S746821L37S798682D

На карте


Условия сделки

Источник


Старт продаж

Возможно заинтересует