Top.Mail.Ru

Свободный проспект, д. 37/18

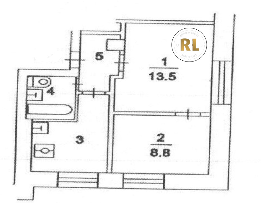
База каталог, Кол-во подъездов: 10, Имеется, II-29-12/М57, Москва, Новогиреево, Площадь парковки: 1536, Пассажирский лифт: 10, От метро: 410, Восточный, да, Наименьшее кол-во этажей: 9, Наибольшее кол-во этажей: 9, Новогиреево, Кол-во помещений: 359, Кол-во нежилых помещений: 12, Год ввода в эксплуатацию: 1969, 2-комн, Кол-во жилых помещений: 347, Не присвоен, дом 37/18, да, да, да, да, да, да, Имеется, Грузовых лифтов: 0, Год постройки: 1969, Свободный проспект, 37.816396, 55.748240
Свяжитесь со мной на счет цены
10 дн.
D55S748240L37S816396D

На карте


Условия сделки

Источник


Старт продаж

Возможно заинтересует