Top.Mail.Ru

улица Алексея Дикого, д. 5, к. 1

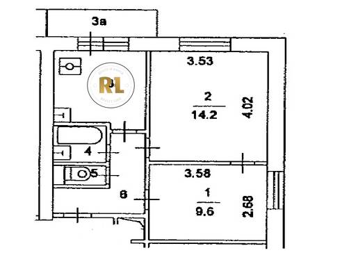
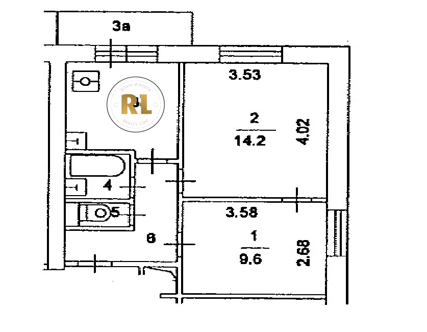
База каталог, Кол-во подъездов: 1, II-18/22, Москва, Новогиреево, Площадь парковки: 135, Пассажирский лифт: 2, От метро: 610, Восточный, да, Наименьшее кол-во этажей: 12, Наибольшее кол-во этажей: 12, Новогиреево, Кол-во помещений: 84, Кол-во нежилых помещений: 0, Год ввода в эксплуатацию: 1968, 2-комн, Кол-во жилых помещений: 84, дом 5, корпус 1, нет, да, да, да, да, да, Имеется, Грузовых лифтов: 0, Год постройки: 1968, улица Алексея Дикого, 37.810045, 55.748270
Свяжитесь со мной на счет цены
10 дн.
D55S748270L37S810045D

На карте


Условия сделки

Источник


Старт продаж

Возможно заинтересует