Top.Mail.Ru

улица Молостовых, д. 19, к. 4

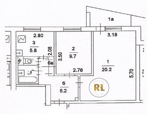
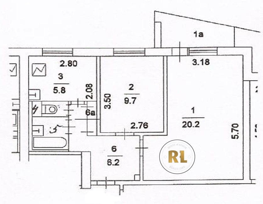
База каталог, Кол-во подъездов: 4, I-515, Москва, Ивановское, Площадь парковки: 0, Пассажирский лифт: 4, От метро: 1320, Восточный, нет, Наименьшее кол-во этажей: 9, Наибольшее кол-во этажей: 9, Новогиреево, Кол-во помещений: 145, Кол-во нежилых помещений: 1, Год ввода в эксплуатацию: 1974, 2-комн, Кол-во жилых помещений: 144, Не присвоен, дом 19, корпус 4, нет, да, да, да, да, нет, Отсутствует, Грузовых лифтов: 0, Год постройки: 1974, улица Молостовых, 37.836061, 55.751898
Свяжитесь со мной на счет цены
10 дн.
D55S751898L37S836061D

На карте


Условия сделки

Источник


Старт продаж

Возможно заинтересует