Top.Mail.Ru

Шелепихинская набережная, д. 8, стр. 2

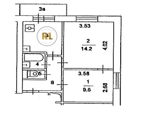
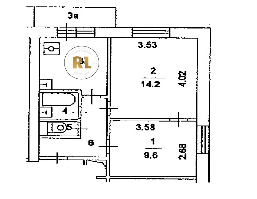
База каталог, Кол-во подъездов: 1, Имеется, II-18/22, Москва, Пресненский, Площадь парковки: 0, Пассажирский лифт: 2, От метро: 670, Центральный, нет, Наименьшее кол-во этажей: 0, Наибольшее кол-во этажей: 12, Шелепиха, Кол-во помещений: 0, Кол-во нежилых помещений: 0, Год ввода в эксплуатацию: 1970, 2-комн, Кол-во жилых помещений: 0, Не присвоен, дом 8, строение 2, нет, да, да, да, да, да, Имеется, Грузовых лифтов: 0, Год постройки: 1970, Шелепихинская набережная, 37.522144, 55.752050
Свяжитесь со мной на счет цены
10 дн.
D55S752050L37S522144D

На карте


Условия сделки

Источник


Старт продаж

Возможно заинтересует