Top.Mail.Ru

улица Молостовых, д. 14, к. 5

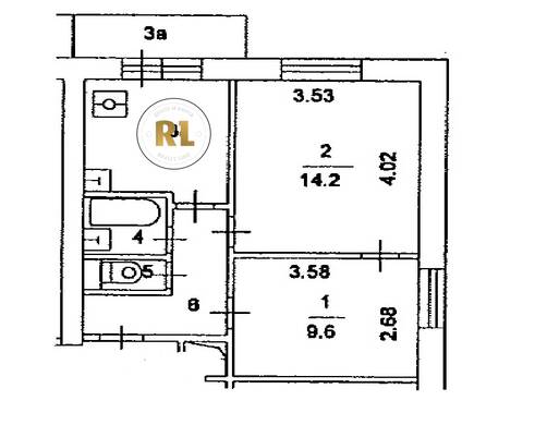
База каталог, Кол-во подъездов: 1, II-18/22, Москва, Ивановское, Площадь парковки: 0, Пассажирский лифт: 2, От метро: 960, Восточный, нет, Наименьшее кол-во этажей: 12, Наибольшее кол-во этажей: 12, Новогиреево, Кол-во помещений: 96, Кол-во нежилых помещений: 0, Год ввода в эксплуатацию: 1972, 2-комн, Кол-во жилых помещений: 96, Не присвоен, дом 14, корпус 5, нет, да, да, да, да, да, Отсутствует, Грузовых лифтов: 0, Год постройки: 1972, улица Молостовых, 37.830347, 55.753646
10 300 000 Р
10 дн.
D55S753646L37S830347D
+

На карте


Условия сделки

Источник


Старт продаж