Top.Mail.Ru

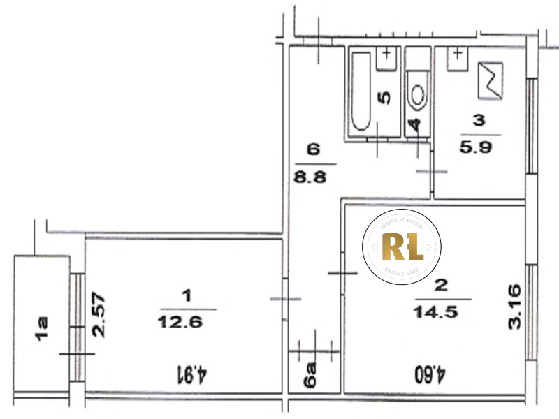
улица Молостовых, д. 14, к. 1

База каталог, Кол-во подъездов: 6, II-49Д, Москва, Ивановское, Площадь парковки: 0, Пассажирский лифт: 6, От метро: 1060, Восточный, нет, Наименьшее кол-во этажей: 9, Наибольшее кол-во этажей: 9, Новогиреево, Кол-во помещений: 209, Кол-во нежилых помещений: 1, Год ввода в эксплуатацию: 1970, 2-комн, Кол-во жилых помещений: 208, Не присвоен, дом 14, корпус 1, нет, да, да, да, да, да, Отсутствует, Грузовых лифтов: 0, Год постройки: 1970, улица Молостовых, 37.831362, 55.754355
Свяжитесь со мной на счет цены
10 дн.
D55S754355L37S831362D

На карте


Условия сделки

Источник


Старт продаж

Возможно заинтересует