Top.Mail.Ru

улица Молостовых, д. 15, к. 2

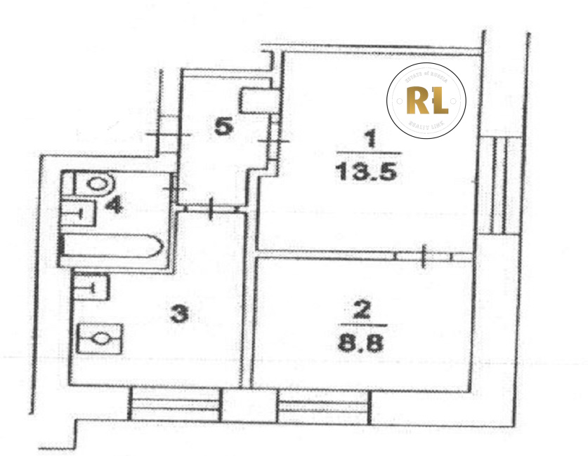
База каталог, Кол-во подъездов: 10, Отсутствует, II-29-05/Ю37, Москва, Ивановское, Площадь парковки: 0, Пассажирский лифт: 10, От метро: 1410, Восточный, нет, Наименьшее кол-во этажей: 9, Наибольшее кол-во этажей: 9, Новогиреево, Кол-во помещений: 359, Кол-во нежилых помещений: 1, Год ввода в эксплуатацию: 1969, 2-комн, Кол-во жилых помещений: 358, Не присвоен, дом 15, корпус 2, нет, да, да, да, да, нет, Отсутствует, Грузовых лифтов: 0, Год постройки: 1969, улица Молостовых, 37.835243, 55.754405
Свяжитесь со мной на счет цены
10 дн.
D55S754405L37S835243D

На карте


Условия сделки

Источник


Старт продаж

Возможно заинтересует