Top.Mail.Ru

улица Сталеваров, д. 18, к. 2

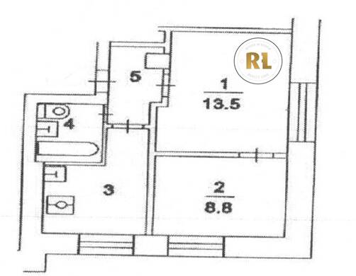
База каталог, Кол-во подъездов: 5, II-29, Москва, Ивановское, Площадь парковки: 0, Пассажирский лифт: 5, От метро: 1580, Восточный, нет, Наименьшее кол-во этажей: 9, Наибольшее кол-во этажей: 9, Новогиреево, Кол-во помещений: 181, Кол-во нежилых помещений: 1, Год ввода в эксплуатацию: 1975, 2-комн, Кол-во жилых помещений: 180, Не присвоен, дом 18, корпус 2, нет, да, да, да, да, нет, Отсутствует, Грузовых лифтов: 0, Год постройки: 1975, улица Сталеваров, 37.837570, 55.756092
Свяжитесь со мной на счет цены
10 дн.
D55S756092L37S837570D

На карте


Условия сделки

Источник


Старт продаж

Возможно заинтересует