Top.Mail.Ru

Саперный проезд, д. 15

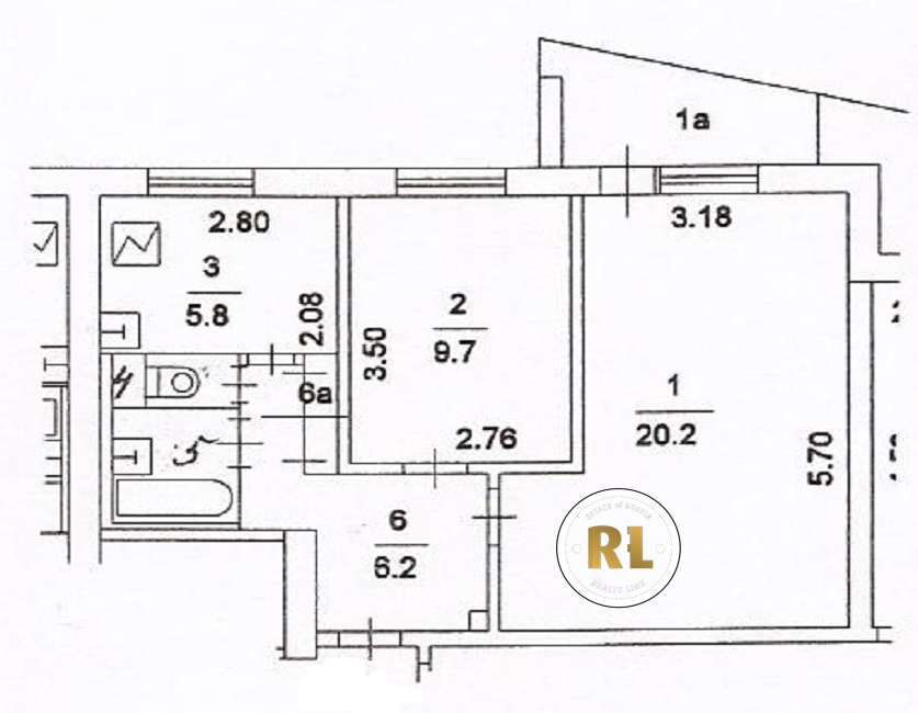
База каталог, Кол-во подъездов: 8, I-515, Москва, Ивановское, Площадь парковки: 0, Пассажирский лифт: 8, От метро: 1040, Восточный, нет, Наименьшее кол-во этажей: 9, Наибольшее кол-во этажей: 9, Новогиреево, Кол-во помещений: 288, Кол-во нежилых помещений: 1, Год ввода в эксплуатацию: 1981, 2-комн, Кол-во жилых помещений: 287, Не присвоен, дом 15, нет, да, да, да, да, да, Грузовых лифтов: 0, Год постройки: 1981, Саперный проезд, 37.828739, 55.756158
Свяжитесь со мной на счет цены
10 дн.
D55S756158L37S828739D

На карте


Условия сделки

Источник


Старт продаж

Возможно заинтересует