Top.Mail.Ru

улица Молостовых, д. 11, к. 5

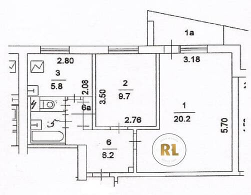
База каталог, Кол-во подъездов: 4, Отсутствует, I-515, Москва, Ивановское, Площадь парковки: 0, Пассажирский лифт: 4, От метро: 1570, Восточный, нет, Наименьшее кол-во этажей: 9, Наибольшее кол-во этажей: 9, Новогиреево, Кол-во помещений: 144, Кол-во нежилых помещений: 0, Год ввода в эксплуатацию: 1968, 2-комн, Кол-во жилых помещений: 144, Не присвоен, дом 11, корпус 5, нет, да, да, да, да, нет, Отсутствует, Грузовых лифтов: 0, Год постройки: 1968, улица Молостовых, 37.836285, 55.757182
Свяжитесь со мной на счет цены
10 дн.
D55S757182L37S836285D

На карте


Условия сделки

Источник


Старт продаж

Возможно заинтересует