Top.Mail.Ru

улица Молостовых, д. 11, к. 4

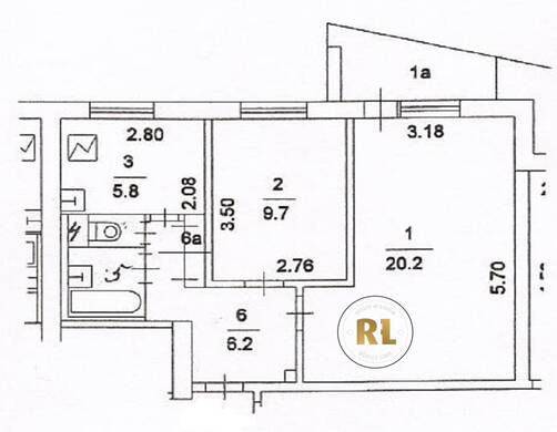
База каталог, Кол-во подъездов: 4, Отсутствует, I-515, Москва, Ивановское, Площадь парковки: 0, Пассажирский лифт: 4, От метро: 1510, Восточный, нет, Наименьшее кол-во этажей: 9, Наибольшее кол-во этажей: 9, Новогиреево, Кол-во помещений: 145, Кол-во нежилых помещений: 1, Год ввода в эксплуатацию: 1969, 2-комн, Кол-во жилых помещений: 144, Не присвоен, дом 11, корпус 4, нет, да, да, да, да, нет, Отсутствует, Грузовых лифтов: 0, Год постройки: 1969, улица Молостовых, 37.835324, 55.757197
Свяжитесь со мной на счет цены
10 дн.
D55S757197L37S835324D

На карте


Условия сделки

Источник


Старт продаж

Возможно заинтересует