Top.Mail.Ru

улица Сталеваров, д. 14, к. 4

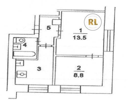
База каталог, Кол-во подъездов: 5, II-29, Москва, Ивановское, Площадь парковки: 0, Пассажирский лифт: 5, От метро: 1800, Восточный, нет, Наименьшее кол-во этажей: 9, Наибольшее кол-во этажей: 9, Новогиреево, Кол-во помещений: 180, Кол-во нежилых помещений: 0, Год ввода в эксплуатацию: 1970, 2-комн, Кол-во жилых помещений: 180, Не присвоен, дом 14, корпус 4, нет, да, да, да, нет, нет, Отсутствует, Грузовых лифтов: 0, Год постройки: 1970, улица Сталеваров, 37.837660, 55.757713
Свяжитесь со мной на счет цены
10 дн.
D55S757713L37S837660D

На карте


Условия сделки

Источник


Старт продаж

Возможно заинтересует