Top.Mail.Ru

улица Молостовых, д. 11, к. 2

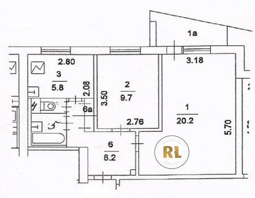
База каталог, Кол-во подъездов: 10, Отсутствует, I-515, Москва, Ивановское, Площадь парковки: 0, Пассажирский лифт: 10, От метро: 1650, Восточный, нет, Наименьшее кол-во этажей: 9, Наибольшее кол-во этажей: 9, Новогиреево, Кол-во помещений: 359, Кол-во нежилых помещений: 1, Год ввода в эксплуатацию: 1970, 2-комн, Кол-во жилых помещений: 358, Не присвоен, дом 11, корпус 2, нет, да, да, да, нет, нет, Отсутствует, Грузовых лифтов: 0, Год постройки: 1970, улица Молостовых, 37.835405, 55.757850
Свяжитесь со мной на счет цены
10 дн.
D55S757850L37S835405D

На карте


Условия сделки

Источник


Старт продаж

Возможно заинтересует