Top.Mail.Ru

1-я Владимирская ул., д. 9

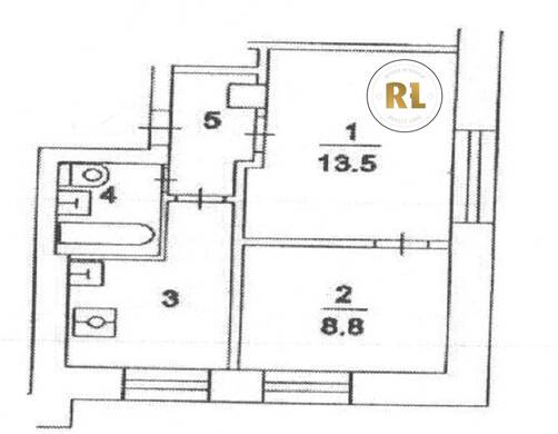
База каталог, Кол-во подъездов: 4, Отсутствует, II-29, Москва, Перово, Площадь парковки: 0, Пассажирский лифт: 4, От метро: 1300, Восточный, нет, Наименьшее кол-во этажей: 9, Наибольшее кол-во этажей: 9, Перово, Кол-во помещений: 0, Кол-во нежилых помещений: 0, Год ввода в эксплуатацию: 1967, 2-комн, Кол-во жилых помещений: 0, Не присвоен, дом 9, нет, да, да, да, да, нет, Отсутствует, Грузовых лифтов: 0, Год постройки: 1967, 1-я Владимирская улица, 37.774427, 55.759451
10 800 000 Р
10 дн.
D55S759451L37S774427D
+

На карте


Условия сделки

Источник


Старт продаж