Top.Mail.Ru

улица Металлургов, д. 48, к. 4

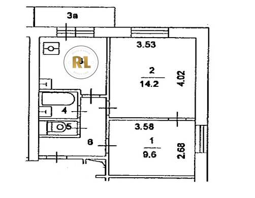
База каталог, Кол-во подъездов: 1, II-18, Москва, Перово, Пассажирский лифт: 2, От метро: 1410, Восточный, да, Наименьшее кол-во этажей: 12, Наибольшее кол-во этажей: 12, Новогиреево, Кол-во помещений: 84, Кол-во нежилых помещений: 0, Год ввода в эксплуатацию: 1967, 2-комн, Кол-во жилых помещений: 84, дом 48, корпус 4, нет, да, да, да, да, нет, Грузовых лифтов: 0, Год постройки: 1967, улица Металлургов, 37.802814, 55.759613
Свяжитесь со мной на счет цены
10 дн.
D55S759613L37S802814D

На карте


Условия сделки

Источник


Старт продаж

Возможно заинтересует